1711
1

Прошу посчитать предварительную смету на строительство частного жилого дома в поселке Сарапулка, Березовского городского округа, примерно 35км от Екатеринбурга. Предусмотрен аванс.

Заказ №58
Заказчик: Агафонов Дмитрий
Добавлен 05 февраля 2018 (8 лет назад)
Свердловская область, Екатеринбург, п. Сарапулка
Начать работы в любое время
Бюджет: жду предложений

Интересны варианты работа+материалы:
1-фундамент, коробка дома без утепления и под кровлю с временным покрытием руберойд.
2-фундамент, коробка дома с утеплением стен и кровли с покрытием кровли мягкая черепица (технониколь, шинглас котепал и т.д) без окон и дверей.
3-с чистовой отделкой, утеплением, отделкой фасада штукатуркой, внешние двери, окна, кровля мягкая черепица, без коммуникаций.
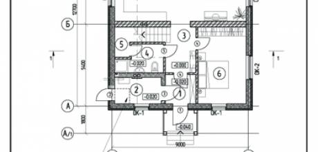
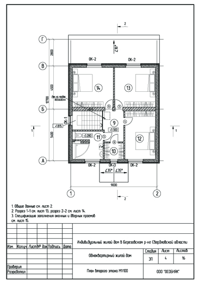
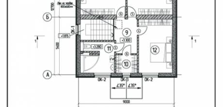
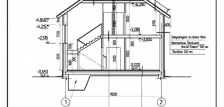
Эскизный проект во вложении..