1121
1

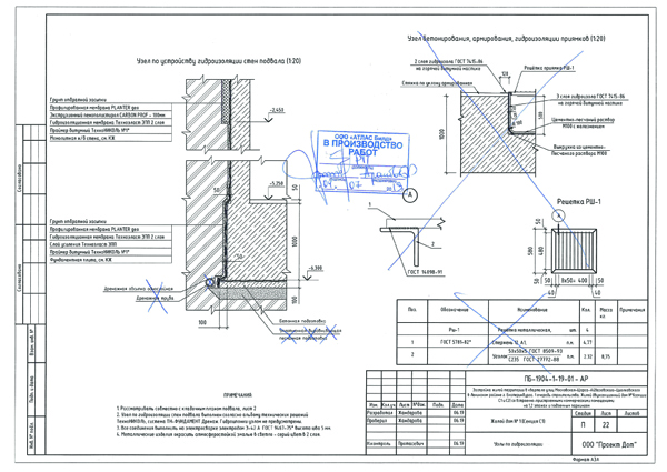
Прошу Вас рассмотреть возможность производства работ

Заказ №209
Заказчик: Галимулин Вячеслав Сулейманович
Добавлен 18 августа 2019 (6 лет назад)
Свердловская область, Екатеринбург, Екатеринбург
Начать работы в любое время
Бюджет: жду предложений

Производство строительных работ