1285
0

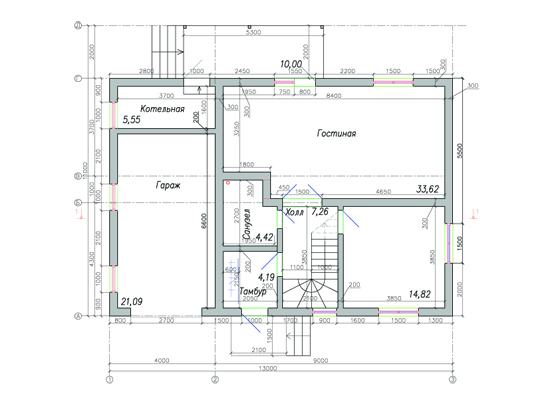
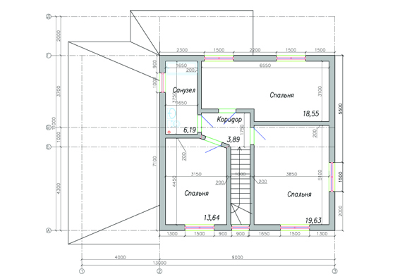
Требуется выполнить устройство фундамента

Заказ №154
Заказчик: Эльвира Штукарева
Добавлен 25 декабря 2018 (7 лет назад)
Свердловская область, Екатеринбург, г. Екатеринбург
Начать работы в любое время
Бюджет: жду предложений

С вашими материалами сколько будет стоить фундамент свайно -ростверк и плита под теплый пол. Планируем строить дом из блоков полистиролбетонных и плит из полистиролбетонных. Необходимы ваши услуги по строительству.